|
|
Дом из газобетона ДГ-5
Большой аккуратный дом в классическом стиле - 266 м2, подойдёт
для большой семьи
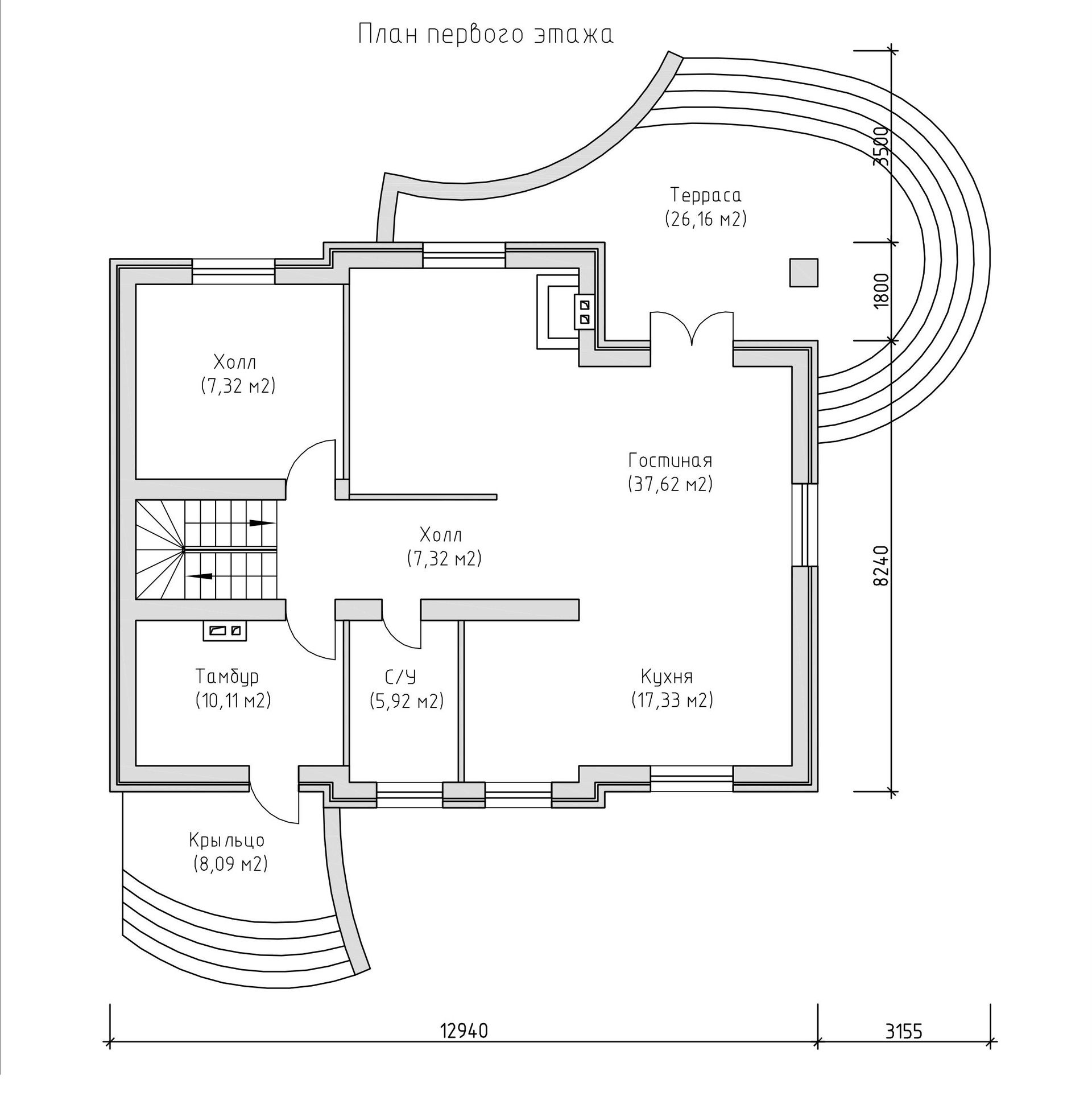
Планировка:
| Общая
(строительная) площадь |
288,35 м² |
|
|
|
| Полезная
площадь |
266,49
м² |
| Площадь
1-го этажа |
119,87 м² |
|
|
|
| Площадь
2-го этажа |
107,60 м² |
|
|
|
| Высота потолков
1-го этажа |
2900мм |
|
|
|
| Высота потолков
2-го этажа |
2900мм |
| Высота мансардного
ската |
1500мм |
|
|
|
| Минимальные размеры
участка |
21,54м х 22,10м |
|
|
|
| |
|
|
|
|
|
| Стоимость строительства |
|
|
|
| |
|
3
189 050 руб. |
Фундамент |
Мелкозаглубленный ленточный
фундамент
Подушка из утрамбованного песка 600х200 мм
Ширина фундамента 600 мм
Высота фундамента 800 мм
(500 мм в земле, 300 мм над землей) |
| Строительство
дома |
Перекрытие цоколя (пол первого этажа):
Железобетонная плита перекрытия
Стены первого этажа:
Внешние стены - газобетонные блоки 400 мм
Внутренние несущие стены - газобетонные блоки
400 мм
Перекрытие первого этажа (потолок первого
этажа):
Деревянная балка 100*200 мм,
с шагом 600 мм
Стены второго этажа:
Внешние стены - газобетонные блоки 400 мм
Внутренние несущие стены - газобетонные блоки
400 мм
Перекрытия второго этажа (потолок второго
этажа):
Деревянная балка 100*200 мм,
с шагом 600 мм
Устройство балкона в черновом виде
Стропильная система 200х50 мм
Доставка материалов, материалы, монтажные
работы на участке |
|
| Кровля |
Кровля Металлочерепица Супермонтерей
0,45 мм с подкровельной гидроизоляцией, монтаж
на обрешетку
|
|
|
|
|
в кредит 21 734
руб.
подробнее
|
|
|
|
|
| Такой
же дом из кирпича 4 059 140 руб.
|
Остались вопросы?
|
| Для заключения договора необходимо: |
1.
Паспорт
2. Аванс в размере
80% от стоимости строительства дома
3. Свидетельство о собственности на Земельный
участок или Членская книжка садовода
4. Кадастровый план Земельного участка или План
земельного участка с размерами, нарисованный
от руки
5. Если у Вас будут изменения к стандартной
планировке (изменение количества окон, дверей,
изменение планировки, вид кровли и т.д.) Пожалуйста
подготовьте этот список заранее, посоветовавшись
с Вашими близкими |
|
|
|
|
|
|
|
|
Для начала строительства необходимо: |
|
|
|
1.
Электричество на участке. Если на Вашем участке
нет электричества мы можем предоставить Электростанцию.
Стоимость аренды составит 5 000 руб. плюс стоимость
бензина
2. Место для складирования материалов. Площадка
8х8 метров
3. Место для проживания строителей. Бригада
состоит из 3-4 человек. Если на Вашем участке
нет возможности разместить строителей, Вы можете
заказать у нас в аренду строительный вагончик,
стоимость 15 000 руб. на весь период строительства |
|
|
|
|
|
|
|
|
Порядок платежей: |
|
|
|
1. Геологическое исследование
строительного участка, стоимость 15 000 руб.
На месте посадки дома бурим от одной до двух
скважин, глубиной до 8 метров, выбираем грунт
с разных глубин. Образцы грунта передаются в
специализированную лабораторию. На основе лабораторных
анализов и проекта дома выполняется проект на
фундамент. Срок выполнения работ 5-10 рабочих
дней.
2. Проектирование. Покупка проекта 20 000 руб. В последующем Вы получаете скидку
на строительство дома на эту сумму.
3. Строительство коробки дома. Аванс 80% от
стоимости "Строительство дома" Вы вносите перед
завозом материалов для дома. После сборки стен
1-го этажа вносится 10%, оставшиеся 10% Вы вносите
после монтажа кровли.
Срок выполнения работ 3
месяца.
|
|
|
|
|
|
|
|
|
Дополнительно Вы можете заказать: |
1. Заведение коммуникаций в
дом (свет, вода), ориентировочно 40-50 т.р.
2. Автономная система канализации "выгребная
яма". Бетонные кольца, пластиковый люк, утепленная
труба, греющий кабель.
Стоимость с одним колодцем 80 000 руб.
(Фото >>),
Двумя колодцами (переливная яма) 110 000
руб. (Фото>>)
3. Доработка этого проекта 20 000
руб.
4. Визуализация экстерьера дома под Ваш
вариант внешней отделки 10 000 руб.
5. Крыльцо
для входа в дом на металлокаркасе 40-70 т.р.
6. Благоустройство территории: тротуарная плитка,
ограждения, ландшафтный дизайн
|
|
|
|
|
|
|
|
| Стоимость
доставки и регион строительства:
|
|
|
|
| Новосибирская область |
0 руб. |
В пределах 50 км
от границы города |
|
|
|
|
|
|
|
|
|
| * Все цены включают стоимость
материалов и стоимость работ на участке Заказчика |
|
|
|
Фасады:

Преимущества Проекта ДГ-5:
Большой аккуратный дом в классическом стиле.
Основными помещениями первого этажа является кухонная зона и гостиная,
из которой имеется выход на большую террасу.
Необычность формы террасы придает особенную выразительность архитектурным формам всего дома.
Второй этаж разбит на спальные комнаты больших площадей. Из двух комнат имеются выходы на балконы,
с которых открывается отличный вид.
Вернуться к каталогу домов
из газобетона
|
|