Перейти на главную страницу

Двухэтажный дом из газобетона

Каменный дом 387 м2

Проект двухэтажного дома из газобетона

Дома из бруса - Цены
Коттеджи из бруса - Цены
Бани из бруса - Цены
Дома из СИП панелей - Цены
Каркасные дома
Кирпичные дома - Цены
Дома из газобетона - Цены

Продажа готовых объектов
Отделочные работы
Фундамент

Профилированный брус
Земельные участки
Строительство в кредит
  Субсидия на строительство

Материнский капитал

Военная ипотека

Сбербанк

Пресса о нас

О компании
Партнеры
Отзывы
Контакты





Почему выбирают нас?

- Стабильная компания, занимающая лидирующее положение на рынке
- Огромный опыт в сфере строительных услуг
- Фиксированная цена с начала и до конца строительства
- Контроль качества на всех этапах строительства
- Понятная система ценообразования, прописанная на странице каждого проекта




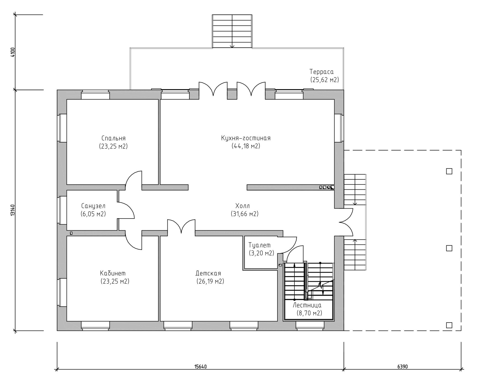
Дом из газобетона ДГ-11
Большой современный дом - 387 м2, со свободной планировкой второго этажа


Преимущества Проекта ДГ-11:


    
Большой современный дом в классическом стиле.

     Габариты дома позволяют не искать компромиссов при формировании внутреннего пространства.

     На мансардном этаже используется свободная планировка для ее последующего формирования под конкретные нужды .
 

Вернуться к каталогу домов из газобетона

 





 
г. Новосибирск, ул. Ломоносова 55/1
Тел.: +7 (383) 331-55-00
10:00-17:00 - Понедельник-Пятница

Пожалуйста, согласуйте заранее время Вашего визита
Новости
02.02.2023 Инвестиционный проект в Москве
Подробнее

01.02.2023 Цены на сайте устарели
Уточните акутальную стоимость у нас
Подробнее

10.01.2023 Успейте построить по зимним ценам
Подробнее

01.12.2022 Как мы работаем
Формат взаимодействия с нашей компанией
Подробнее

07.02.2020 Сельская ипотека 2,7-3% годовых на строительство
Подробнее

16.01.2020 Материнский капитал будут платить за первого и за третьего ребенка!
Подробнее

21.03.2019 Компания Сибирский Дом стала официальным представителем Z500 в Новосибирске
Подробнее

15.01.2019 Зимой — лучшая цена на строительство дома из бруса
Подробнее

26.12.2018 График работы на Новогодние праздники
Подробнее

16.11.2018 Зимой — лучшая цена на строительство кирпичного дома
Подробнее

29.10.2018 График работы офиса на ноябрьские праздники
Подробнее

02.10.2018 Умный дом в подарок
Подробнее

06.09.2018 Семинар и фотовыставка «Загородная жизнь»
Подробнее

31.08.2018 Дом + участок = Баня в подарок
Подробнее

08.08.2018 Запускаем семинары он-лайн
Подробнее

14.07.2018 Двухэтажный дом с эркером. Теперь со скидкой
Подробнее

14.06.2018 Лето подарит жаркие скидки
Подробнее

27.05.2018 Итоги Рейтинга коттеджных посёлков Новосибирской области

Подробнее


17.05.2018 Народный выбор - Голосуем за лучший посёлок

Подробнее


25.04.2018 График работы офиса на майские праздники

Подробнее

24.04.2018 Детский игровой комплекс в подарок
Подробнее

22.04.2018 Развитие рынка малоэтажного строительства
Подробнее

02.04.2018 Альтернатива газовой трубе
Подробнее

14.03.2018 Как выбрать земельный участок. Семинар 17 марта
Подробнее

28.02.2018 В марте построим дом СД-54 по СУПЕР цене
Подробнее

12.02.2018 Cтроить дом самим выгоднее, чем купить готовый коттедж
Подробнее

05.02.2018 Расширяем ассортимент: дома из газобетона
Подробнее

01.02.2018 Сенсация! У нас Компенсация!
Подробнее

24.01.2018 Хит сезона — теплоэффективный дом СД-20 со скидкой
Подробнее

09.01.2018 Зимой — лучшая цена на строительство кирпичного дома
Подробнее

27.12.2017 График работы в Новогодние праздники
Подробнее

25.12.2017 Купить готовый проект дома
Подробнее

01.12.2017 Рождественская акция — строительство зимней дачи со скидкой!
Подробнее

17.11.2017 Ищите готовый дом для военной ипотеки?
Подробнее

10.11.2017 Ипотека 10% на строительство дома
Подробнее

01.11.2017 Только в ноябре скидка 137 555 руб. на строительство дома СД-58
Подробнее

25.10.2017 Меняем формат строительных экскурсий
Подробнее

12.10.2017 Строительство домов под ключ
Подробнее

01.10.2017 Только в октябре скидка 169 551 руб. на строительство дома СД-52
Подробнее

29.09.2017 Оцените наш строительный парк. Новый функционал на сайте Сибирского дома
Подробнее

15.09.2017 Обменяем вашу квартиру на загородный дом
Подробнее

04.09.2017 12 месяцев скидок
Подробнее

08.08.2017 Любой канадский дом - с доставкой в Казахстан
Подробнее

03.08.2017 Дом за 799 000 рублей до 31 августа
Подробнее

14.07.2017 3D прогулка – новый функционал на нашем сайте
Подробнее

28.06.2017 Кирпичные дома. Теперь строим Каменные дома
Подробнее

06.06.2017 Фасадная плитка для вашего дома – в подарок!
Подробнее

25.04.2017 Презентация новых направлений строительства на выставке «Загородный дом-2017»
Подробнее

24.04.2017 Получите в подарок газонокосилку или комплект спутникового ТВ!
Подробнее

14.03.2017 Ярмарка недвижимости в Омске 18 марта.
Подробнее

02.03.2017 Розыгрыш железобетонных свай для малоэтажного строительства
Подробнее

28.02.2017 От прошлых достижений к будущим! Из 2016 в 2017!
Подробнее

23.12.2016 Режим работы на Новогодние праздники
Подробнее

18.10.2016 Сроки строительства дома в зависимости от материала и технологий
Подробнее

23.09.2016 Как я выбирал внешнюю отделку(часть2)
Подробнее

20.09.2016 Как проходят экскурсии
Смотрите новые видеоотчеты - как проходят экскурсии
Подробнее

25.07.2016 Как я выбирал внешнюю отделку(часть1)
Подробнее

21.07.2016 Ярмарка поселков
Дорогие друзья приглашаем принять участие в «ЯРМАРКЕ ПОСЕЛКОВ»
Подробнее


06.07.2016 Как я выбирал земельный участок(часть2)
Подробнее

01.07.2016 Как проходят экскурсии
В последнее время многие интересуются - как проходят экскурсии?
Подробнее

30.06.2016 Новые проекты
Компания "Сибирский Дом" предлагает Вашему вниманию новые проекты дачных домиков
Подробнее

27.06.2016 Ярмарка поселков
Краткий фотоотчет с «ЯРМАРКИ ПОСЕЛКОВ»
Подробнее

21.06.2016 Отделка в подарок  от «Сибирского дома»!
Внутренняя отделка своего дома в подарок!
Подробнее

14.06.2016 Шаг вперед: «Суперфундамент» от «Сибирского дома»!
Компания «Сибирский дом» в очередной раз сделала шаг вперед и открыла новое направление – железобетонные забивные сваи для фундамента.
Подробнее

14.06.2016 Ярмарка поселков
Дорогие друзья приглашаем принять участие в «ЯРМАРКЕ ПОСЕЛКОВ»
Подробнее

07.06
.2016 Как я выбирал земельный участок(часть1)
Построить свой дом я задумал давно. Несколько раз «издалека» на эту тему пообщался с женой и понял – она потенциально не против. «Что ж, тогда надо приниматься за дело и готовить супруге сюрприз», - подумал я. С чего бы начать?
Подробнее

24.04.2016"Выставка Сибирский Дом-2016"
Компания "Сибирский дом" приняла участие в выставке, посвященной малоэтажному домостроению в Новосибирском Экспоцентре . Посмотреть фотоотчет>>

24.03.2016Взята новая вершина - построено 600 домов!
Запись беседы Руслана Адигамова (заместитель директора СК «Сибирский дом») с сотрудниками компании
Подробнее

20.02.2016 Как загубить мечту о своем доме и свой дом?
Что может привести к разочарованию в своем доме? Как можно загубить мечту о доме и свой дом?
Подробнее

12.02.2016 Выбраны лучшие строящиеся коттеджные поселки
Экспертная комиссия Рейтинга коттеджных посёлков выбрала лучшие строящиеся коттеджные посёлки.
Подробнее

11.02.2016 Свой дом - доступно и в Сибири
Компания «Сибирский дом» является участником выставки «Сибирский дом», которая состоится 21-24 апреля 2016 года
Подробнее

09.02.2016 Способы финансирования своего дома
Мечта о своем доме есть у многих, почти у всех. А вот с деньгами бывает напряженно. Что же делать во всех этих случаях?
Подробнее

04.02.2016 Проект и планировка дома - что учесть и как лучше?
Тема этой статьи возникла на основе анализа приоритетов желающих построить свой дом
Подробнее

19.01.2016 Выдерживает ли канадская технология сибирские морозы?
На последней экскурсии это был самый популярный вопрос
Подробнее

14.01.2016ЦЕНЫ ЗАМОРОЖЕНЫ ДО 29 февраля !!!
Построить дачу из бруса в 2016 году по цене 2015 года? Реально!!!
Подробнее

______________________________
Предыдущие новости можно посмотретьздесь



© Авторские права на содержимое сайта защищены ООО «Сибирский дом» 2009-2023кодекса РФ


Назад