| |
|
Проект СП53 - просторный
дом для компактного участка 350,7м2
| Общая площадь |
350,7м² |
|
|
|
|
| Площадь 1-го этажа |
179,2м² |
|
|
|
|
| Площадь 2-го этажа |
171,5м² |
|
|
|
|
| Высота потолков |
2800мм |
|
|
|
|
| Угол наклона крыши |
19º |
|
|
|
|
| Минимальные размеры
участка |
18,4м х 21,3м |
|
|
|
|
| |
|
|
|
|
|
Эксплуатация дома до -50°С
|
|
|
|
|
|
|
|
|
| Стоимость
строительства |
|
|
|
|
|
| 325 300 руб. |
Фундамент |
Ленточный Армированный фундамент Ф-19. Общая
высота 800мм, ширина 300мм |
|
|
|
| 3 983 190 руб. |
Строительство дома |
Обвязочный брус естественной
влажности с антисептированием, Пол,
потолок (перекрытия) - СИП панель
224мм, Внешние стены, несущие стены
- СИП панель 174мм, Внутренние,
ненесущие стены - СИП панель 124мм,
Пиломатериал для каркаса влажность
12-14%, OSB-3 12мм Европа,
Пенополистирол ПБС-25
Устройство террасы и балкона в черновом виде
Стропильная система (крыша без
кровли)
|
|
|
|
|
Под
самоотделку :
4 308
490 руб. + доставка
(смотрите для
Вашего региона) |
ЗАФИКСИРОВАТЬ
ЦЕНУ
|
| 316 700 руб. |
Кровля |
Кровля Металлочерепица
|
| 160
470 руб. |
Окна |
Окна KBE Siberia, 3 камеры |
| 14 500 руб. |
Входные двери |
Входная дверь металлическая Россия |
|
|
Тепловой
контур : 4 800 160 руб.
+ доставка
(смотрите для
Вашего региона) |
|
|
| 30 000
руб. |
Система вентиляции эконом
|
Установка приточных клапанов в
стену (2-3 шт), принудительные
вытяжки из сан.узлов по датчику
движения, вытяжка на кухне,
пластиковые воздуховоды
|
702 000 руб.
|
Система отопления
|
Электрический котел
12 кВт, алюминиевые радиаторы 86
секций, разводка из армированной
полипропиленовой трубы (217 метров),
запорная арматура (шаровые краны)
|
117 000 руб.
|
Система
водоснабжения
|
Разводка горячей и
холодной воды из полипропиленовой
трубы 20 мм, разводка канализации из
пластиковой трубы 50-100 мм до точек
водоразбора, (раковина, унитаз,
ванная, душевая кабина, стиральная
машина), водонагреватели 100л (1
шт), запорная арматура (шаровые
краны), счетчик холодной воды,
фильтр грубой очистки
|
315 700 руб.
|
Электрика
|
Скрытая проводка под обшивкой, Комплектация групп электропроводки, выводы под розетки а так же ТВ и интернет исходя из пожеланий заказчика, проходные выключатели на лестничных пролетах, выводы под светильники и выключатели. Перечень электромонтажных подготовительных работ: монтаж электропроводки открытым способом в ПВХ- коробах, гофре; сборка и монтаж электрического щита; сверление отверстий под установочные коробки; установка распаечных коробок; монтаж Эл. счетчика, монтаж линий слаботочки (ТВ и интернет).
|
|
| | Под чистовую отделку : 5 964 860 руб. +
доставка (комплектация
доступна только для
региона Новосибирск) |
|
|
| 80 000 руб. |
Интерьерная лестница |
Интерьерная лестница на металлическом
каркасе, ступени дерево с покрытием.
Подробнее
>> |
| 22 000 руб. |
Межкомнатные двери |
Двери межкомнатные мазонитовые |
219 000 руб.
|
Внешняя отделка |
Виниловый сайдинг
Европа с устройством
вентилируемого фасада, цвет на
выбор Заказчика |
| 574 200 руб. |
Внутренняя отделка стен |
Профиль, гипсокартон, шпаклевка,
обои под покраску, покраска. Цвет
любой |
| 140 300 руб. |
Внутренняя отделка
пола |
Подложка, линолеум эконом |
| 210 500 руб. |
Внутренняя отделка
потолок |
Натяжной потолок бесшовный |
|
| Под ключ: 7 210 860 руб. +
доставка (комплектация
доступна только для региона
Новосибирск) |
|
|
| 59 818
руб. |
В
кредит под ключ |
Ежемесячный платеж по программе "Строительство жилого дома" |
| |
|
Отправить
заявку на кредит |
| |
|
|
|
 |
| |
| Для заключения
договора необходимо: |
|
|
|
1. Паспорт
2. Аванс в размере 50% от стоимости
фундамента
3. Свидетельство о собственности на
Земельный участок или Членская
книжка садовода
4. Кадастровый план Земельного
участка или План земельного участка
с размерами, нарисованный от руки
5. Если у Вас будут изменения к
стандартной планировке (изменение
количества окон, дверей, изменение
планировки, вид кровли и т.д.)
Пожалуйста подготовьте этот список
заранее, посоветовавшись с Вашими
близкими |
|
|
|
|
|
|
|
| Для начала
строительства необходимо: |
|
|
|
1. Электричество на
участке. Если на Вашем участке нет
электричества мы можем предоставить
Электростанцию. Стоимость аренды составит 5 000 руб. плюс стоимость
бензина
2. Место для проживания строителей.
Бригада состоит из 3-4 человек. Если
на Вашем участке нет возможности
разместить строителей, Вы можете
заказать у нас в аренду
строительного вагончика, стоимость 15 000 руб. на весь период строительства
4. Место для складирования
материалов. Площадка 8х8 метров |
|
|
|
|
|
|
|
| Порядок платежей: |
|
|
|
1. Аванс 50% от
стоимости фундамента, вносится при
заключении договора
2. Второй платеж в размере 50% от
стоимости фундамента Вы вносите
после окончания работ по фундаменту
3. Третий платеж в размере 75% от
стоимости "Строительство дома +
доставка" Вы вносите перед завозом
материалов для дома
4. Четвертый платеж в размере 10% от
стоимости "Строительство дома +
доставка" Вы вносите после установки
стен 1-го этажа
5. Пятый платеж в размере 10% от
стоимости "Строительство дома +
доставка" Вы вносите после установки
стен 2-го этажа
6. Шестой платеж в размере 5% от стоимости "Строительство дома + доставка" Вы вносите после окончания работ по строительству дома
7. Седьмой платеж в размере 50% от
стоимости кровли Вы вносите при
заключении договора на кровлю
8. Восьмой платеж в размере 50% от
стоимости кровли Вы вносите после
окончания работ по устройству кровли
9. Девятый платеж в размере 50% от
стоимости окон и дверей Вы вносите
при заключении договора на установку
окон и дверей
10. Десятый платеж в размере 50% от
стоимости окон и дверей Вы вносите
после окончания работ по установке
окон и дверей |
|
|
|
|
|
|
|
| Дополнительно Вы
можете
заказать: |
1. Забор из металлопрофиля. Фундамент ленточный армированный 100х300(высота 300мм), прямоугольная крашеная профильная труба 40х20,
металлопрофиль с полимерным покрытием, высотой 1500мм.
Общая высота забора 1800мм - 2 500 руб./погонный метр Фото
>>
2. Автономная система канализации "выгребная яма". Бетонные кольца, пластиковый люк, утепленная труба, греющий кабель. Стоимость с одним колодцем 80 000 руб.
(Фото >>), с двумя колодцами(переливная яма) 110 000 руб.
(Фото>>)
3. Автономная система газоснабжения "Газгольдер". Стоимость от 303 100 руб.
4. Станция очистки хозяйственно-бытовых сточных вод "Alta Bio" для частной канализации от 125 000 руб.
Подробнее >>
5. Система автоматизации жилого дома (умный дом)
Подробнее >>
|
|
|
| |
|
|
|
| Стоимость доставки: |
|
|
|
| Новосибирская область |
60
000 руб. |
|
|
|
|
| Алтайский край |
80
000 руб. |
|
|
|
|
| Красноярский край |
110
000 руб. |
|
|
|
|
| Омская область |
110
000 руб. |
|
|
|
|
| Томская область |
110
000 руб. |
|
|
|
|
| |
|
|
|
|
|
| * Все цены включают
стоимость материалов и стоимость
работ на участке Заказчика |
|
|
|
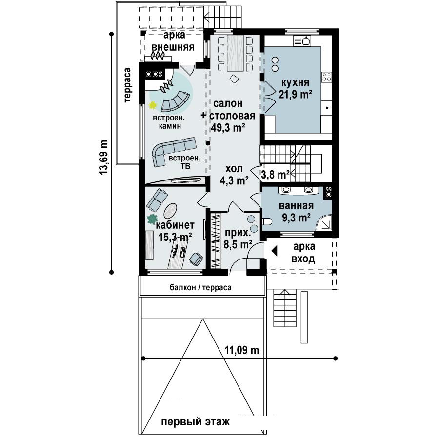
Фасады:
Планировка:
Проект СП53 - это
дом с намеком на современность.
Компактная, двускатная крыша выполнена
из металла, при этом она очень удачно
сочетается с деревом, которым обшит
дом. Такое здание является идеальным
решением при выборе компактного по
площади и в то же время просторного
загородного жилья.
Туалет расположен в подсобном
помещении, с целью экономии
пространства в самом доме. Через это
же помещение можно пройти и в гараж. У
гаража есть свое техническое
отделение, для хранения инструментов и
топлива.
На мансарде расположены четыре
удобные, хорошо освещенные широкими
окнами, спальни. Самая большая спальня
имеет свой собственный балкон. Ванная
комната настолько большая, что в ней
вы с легкостью сможете разместить и
джакузи, и сауну. В ванной комнате
полно зеркал и шкафчиков, а также
большое и красивое окно. Наклон крыши
на чердаке совсем не ощущается, все
благодаря грамотной работе дизайнеров.
Этот дом в первую очередь создавался
для практичных людей, которые ценят
современный дизайн в традиционном
интерьере. Проект очаровывает с
первого взгляда.
|
|